P R O Y E C T O S
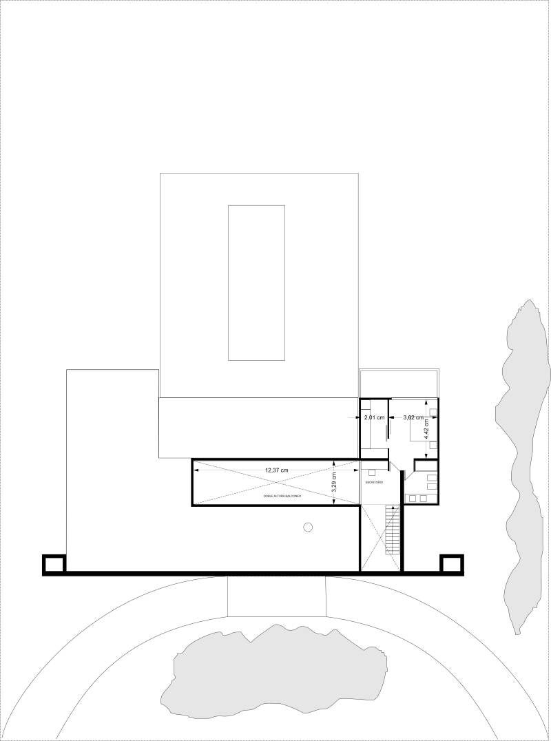
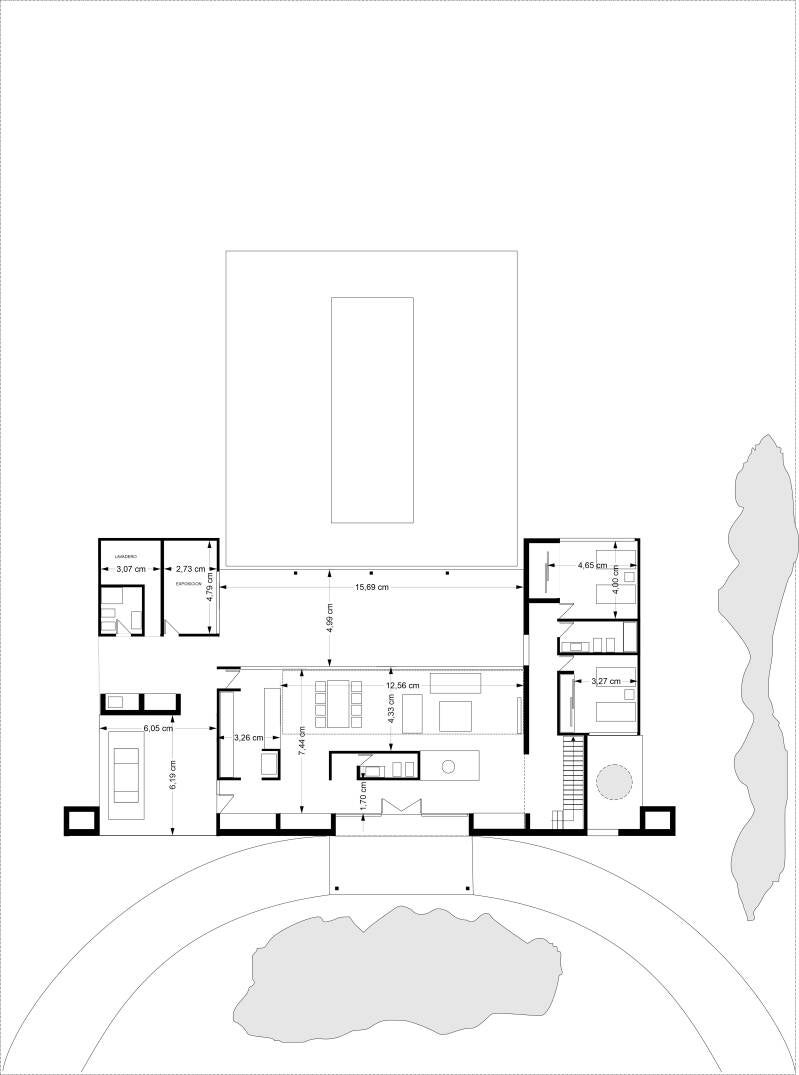
V I V I E N D A E N P A V Ó N 5 M1
P L A N T A B A J A
P L A N T A A L T A
Crea tu propia página web con Webador