M  O  D  E  L  O      1

P L A N T A  NIVEL +2.00  

M  O  D  E  L  O      2

 

P L A N T A   NIVEL +2,50

P L A N T A   NIVEL +5,50

M  O  D  E  L  O     3

 

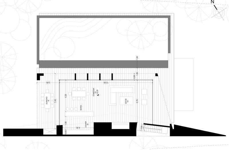
P L A N T A   NIVEL 0.00 

 

P L A N T A   NIVEL + 3.00