vivienda  B A R R E I R O

La Reserva  -  Costa del Este - Buenos Aires

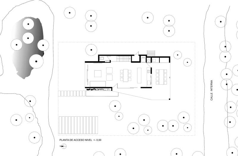
dibujos del proyecto

Crea tu propia página web con Webador